用途 回转式格栅除污机是一种专业的水处理固液分离设备,主要用于城镇污水处理厂、区污水预处理装置、市政雨污水泵站、自来水厂和电厂冷却水等进水口处,该设备也用于纺织、印染、食品、水产、造纸、屠宰、制革等各个行业的水处理工程,是水处理行业中的固液分离设备。结构及工作原···
24小时咨询热线
0510-87831705
用途
回转式格栅除污机是一种专业的水处理固液分离设备,主要用于城镇污水处理厂、区污水预处理装置、市政雨污水泵站、自来水厂和电厂冷却水等进水口处,该设备也用于纺织、印染、食品、水产、造纸、屠宰、制革等各个行业的水处理工程,是水处理行业中的固液分离设备。
结构及工作原理
该设备釆用回转式,由一种特殊形状的犁形耙齿按一定的装配顺序的数量排列在横轴上,组成耙齿链,根据过水流量,装配成不同的间隙,安装在泵站或水处理系统的入口处,当驱动装置带动耙齿链自下向上运动时,水中的杂物被耙齿链捞起,液体则在栅隙中流过,设备转动到上部顶点后,耙齿链改变运行方向,由上向下运动,物料依靠自重从耙齿上自行脱落,当耙齿从反面转到底部时,又开始另一循环往复的连续运行,从而不断的从水中清捞杂物,达到固液分离的目的。
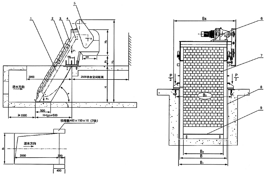
技术参数和安装尺寸表
| 型号/参数 | XLH- 500 | XLH- 600 | XLH- 700 | XLH- 800 | XLH- 900 | XLH- 1000 | XLH- 1100 | XLH- 1200 | XLH- 1300 | XLH- 1400 | XLH- 1500 | |
| 设备宽度B(mm) | 500 | 600 | 700 | 800 | 900 | 1000 | 1100 | 1200 | 1300 | 1400 | 1500 | |
| 渠道宽度B1(mm) | B+100 | |||||||||||
| 有效栅宽B2(mm) | B-157 | |||||||||||
| 基础螺栓间距B3(mm) | B+200 | |||||||||||
| 设备总宽B4(mm) | B+350 | |||||||||||
| 耙齿间隙 b(mm) | t=100 | 1 ≤b≤50 | ||||||||||
| t=150 | 10≤b≤50 | |||||||||||
| 安装角度α(°) | 60-85 | |||||||||||
| 渠道深度H(mm) | 800-12000 | |||||||||||
| 卸料口至平台高度H1(mm) | 600-1200 | |||||||||||
| 设备总高H2(mm) | H+H1+1500 | |||||||||||
| 后箱架高 H3(mm) | t=100 | ≈1000 | ||||||||||
| t=150 | ≈1100 | |||||||||||
| 耙齿运行速度V(m/min) | ≈2.1 | |||||||||||
| 电机功率N(kw) | 0.55-1.1 | 0.75-1.5 | 1.1-2.2 | 1.5-3.0 | ||||||||
| 水头损失(mm) | W20(无堵塞时) | |||||||||||
| 土建 载荷 | P1(KN) | 20 | 25 | |||||||||
| P2(KN) | 8 | 10 | ||||||||||
| △P(KN) | 1.5 | 2.0 | ||||||||||
主要特点
驱动装置釆用摆线针轮或斜齿轮式减速电机直接驱动,噪声低、结构紧凑,运行平稳等特点;
机架为整体框架结构,刚性强,安装简便、日常维修工作量少;
耙齿规格两种,耙齿节距t=100、200mm;
设备操作简便,可直接就地/远程控制设备的运行;
为防止意外过载,设有机械剪切销和过电话流双重保护,使设备运行安全可靠;
当设备宽≥1500mm时,为保证设备的整体强度,将采用并联机的形式。
过水流量表
| 型号 | XLH- 500 | XLH- 600 | XLH- 700 | XLH- 800 | XLH- 900 | XLH- 1000 | XLH- 1100 | XLH- 1200 | XLH- 1300 | XLH- 1400 | XLH- 1500 | ||
| 栅前水深H3(m) | 1.0 | ||||||||||||
| 过栅流速V¹(m/s) | 0.8 | ||||||||||||
| 间隙 b(mm) | 1 | 过水 流量 Q (m³/m) | 0.03 | 0.04 | 0.05 | 0.06 | 0.07 | 0.08 | 0.08 | 0.09 | 0.10 | 0.11 | 0.12 |
| 3 | 0.07 | 0.09 | 0.10 | 0.12 | 0.14 | 0.16 | 0.18 | 0.20 | 0.22 | 0.24 | 0.26 | ||
| 5 | 0.09 | 0.11 | 0.14 | 0.16 | 0.18 | 0.21 | 0.23 | 0.26 | 0.28 | 0.31 | 0.33 | ||
| 10 | 0.11 | 0.14 | 0.17 | 0.21 | 0.24 | 0.27 | 0.30 | 0.33 | 0.37 | 0.40 | 0.43 | ||
| 15 | 0.13 | 0.16 | 0.20 | 0.24 | 0.27 | 0.31 | 0.34 | 0.38 | 0.42 | 0.45 | 0.49 | ||
| 20 | 0.14 | 0.17 | 0.21 | 0.25 | 0.29 | 0.33 | 0.37 | 0.41 | 0.45 | 0.49 | 0.53 | ||
| 25 | 0.14 | 0.18 | 0.22 | 0.27 | 0.31 | 0.35 | 0.39 | 0.43 | 0.47 | 0.51 | 0.55 | ||
| 30 | 0.15 | 0.19 | 0.23 | 0.27 | 0.32 | 0.36 | 0.40 | 0.45 | 0.49 | 0.53 | 0.57 | ||
| 40 | 0.15 | 0.20 | 0.24 | 0.29 | 0.33 | 0.38 | 0.42 | 0.46 | 0.51 | 0.55 | 0.60 | ||
| 50 | 0.16 | 0.20 | 0.25 | 0.29 | 0.34 | 0.39 | 0.43 | 0.48 | 0.52 | 0.57 | 0.61 | ||
外形安装尺寸图
